- Ano: 2017
- Superfície: 80m²
- Localização: Santo Antônio de Posse – SP - Brasil
- Engenheria estrutural: Carlos Eduardo Benatti
- Engenharia de instalações: RR Engenharia
- Fotografia: André Scarpa
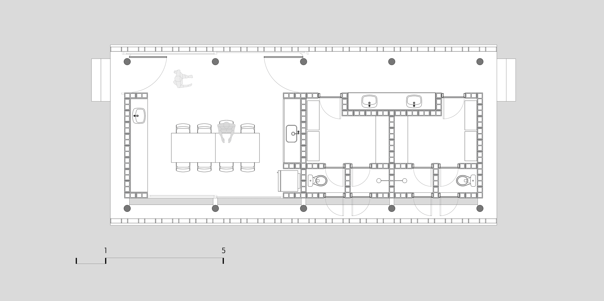
O pavilhão de serviços, localizado numa zona rural do interior do estado de São Paulo, busca ser um espaço de abrigo aos trabalhadores da colheita de laranjas. Seu programa acomoda vestiários e cozinha, com mesa para refeições, além de servir como um espaço onde os funcionários encontram retiro para descansar, relaxar e descontrair.
Todo o projeto se constrói basicamente a partir de um único elemento: o bloco de concreto, tão tradicional na arquitetura brasileira. Esse material se coloca como elemento estrutural e todas as dimensões do projeto se apresentam moduladas em função de suas dimensões. Laje em placas de concreto pré-fabricadas, piso em granilite, fechamentos em vidro. Todos os demais materiais se mantêm neutros, enfatizando o bloco de concreto como elemento mais importante, o qual se mantém visível em seu aspecto original, sem quaisquer outros revestimentos ou pintura.
Já nas elevações principais, o bloco de concreto trabalha como elemento vazado, criando um filtro entre as áreas interna e externa, e proporcionando uma dinâmica interessante na maneira como a luz do sol adentra o ambiente nas diferentes horas do dia. O elemento vazado nas empenas dissolve os limites, permitindo que as cores do entorno, ventilação e iluminação natural adentrem o ambiente, sem deixar de constituir uma barreira física. De maneira contrária, a partir do entardecer, a construção se acende e emana luz através de suas empenas vazadas.
Todo o projeto se constrói basicamente a partir de um único elemento: o bloco de concreto, tão tradicional na arquitetura brasileira. Esse material se coloca como elemento estrutural e todas as dimensões do projeto se apresentam moduladas em função de suas dimensões. Laje em placas de concreto pré-fabricadas, piso em granilite, fechamentos em vidro. Todos os demais materiais se mantêm neutros, enfatizando o bloco de concreto como elemento mais importante, o qual se mantém visível em seu aspecto original, sem quaisquer outros revestimentos ou pintura.
Já nas elevações principais, o bloco de concreto trabalha como elemento vazado, criando um filtro entre as áreas interna e externa, e proporcionando uma dinâmica interessante na maneira como a luz do sol adentra o ambiente nas diferentes horas do dia. O elemento vazado nas empenas dissolve os limites, permitindo que as cores do entorno, ventilação e iluminação natural adentrem o ambiente, sem deixar de constituir uma barreira física. De maneira contrária, a partir do entardecer, a construção se acende e emana luz através de suas empenas vazadas.