Tatersal Amador Aguiar

  • Ano: 2018
  • Superfície: 550m²
  • Localização: Lins – SP - Brasil
  • Projeto de Estrutura: Thiago Mazzutti Guerra
  • Fotografia: André Scarpa
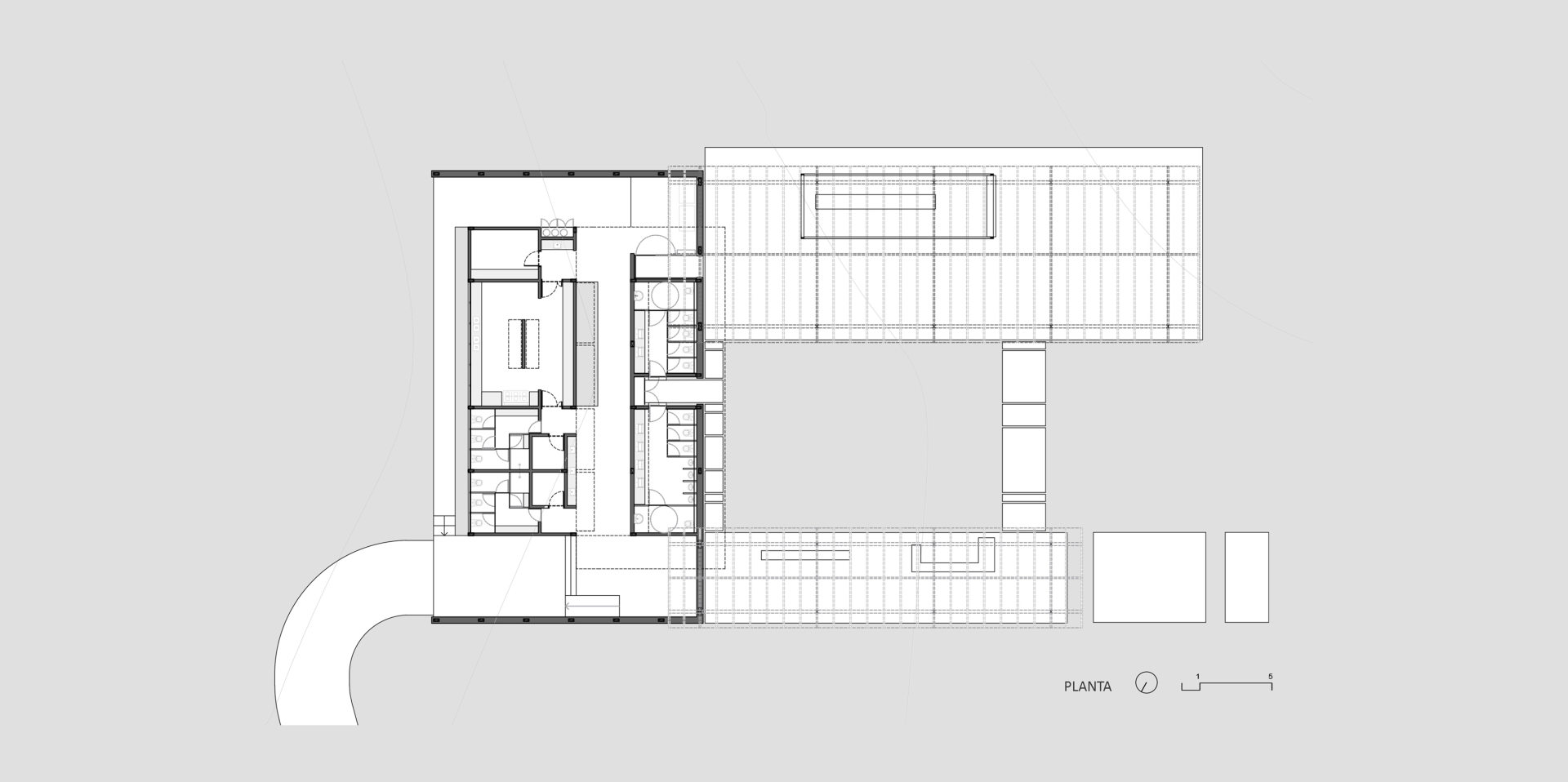
O Tatersal Amador Aguiar consiste em um complexo de apoio para uma fazenda dedicada ao ramo de leilões de gado, localizado na Fazenda Valônia, no município de Lins, interior do estado de São Paulo. Seu programa oferece estrutura para dar suporte aos leilões, bem como recepcionar seus convidados, criando espaços de exposição e confraternização.

A implantação sugere uma releitura dos espaços dos currais nas fazendas, tradicionalmente compostas por duas coberturas que, por sua vez, configuram um pátio. Além disso, se preocupa em facilitar o fluxo de serviços, acessibilidade dos convidados e garantir a vista privilegiada para o vale.

O revestimento em pedra do bloco de serviços também se faz em um material natural, remetendo a técnicas tradicionais, à tipologia do ambiente da fazenda e tecendo maior integração com a natureza ao redor. Seu programa abriga sanitários, cozinha, vestiários e demais serviços necessários para a logística dos eventos.

Os dois pavilhões livres de programas fixos, configuram sombras de proteção para receber os visitantes. Estes se apoiam no bloco de serviços, conformando o pátio, palco central para exposição dos gados e convívio nos eventos.  Os pavilhões têm sua cobertura em telhas cerâmicas de duas águas, fazendo referência direta às construções originais da fazenda. Em contraposição, a estrutura principal é concebida em um sistema de pilares e vigas metálicas, trazendo uma atmosfera contemporânea, além de garantir rápida execução e baixa manutenção. 

Este site usa cookies para fornecer a funcionalidade necessária do site, melhorar sua experiência e analisar nosso tráfego. Ao usar nosso site, você concorda com nossa Política de Privacidade e uso de cookies.