- Ano: 2017
- Superfície: 190m²
- Localização: Praia do Prumirim Ubatuba - SP
- Interiores / Decoração: Manaa arquitetura
- Projeto e montagem de estrutura de madeira: Ita Construtora
- Projeto de estrutura: Gil Chinellato
- Projeto de instalações: RR Engenharia de instalações
- Consultoria de iluminação: Ricardo Heder
- Construção: Empreiteiro Adonias
- Fotografia: André Scarpa
O projeto para a casa na Praia do Prumirim está situado no litoral norte do estado de São Paulo e se desenha em meio à densa mata atlântica dos mares paulistas, a poucos metros do mar. Devido à arborização abundante, sua implantação enfrenta grandes limitações quanto à área de supressão vegetal, o que representou uma forte condicionante na ocupação do terreno. Desta maneira, a premissa principal da arquitetura se preocupou em garantir a valorização dos espaços de convívio, a partir da conformação de pátios que promovem a integração dos ambientes e se beneficiam de grandes aberturas, trazendo o verde da mata para o interior da casa, como uma cabana aberta à vegetação.
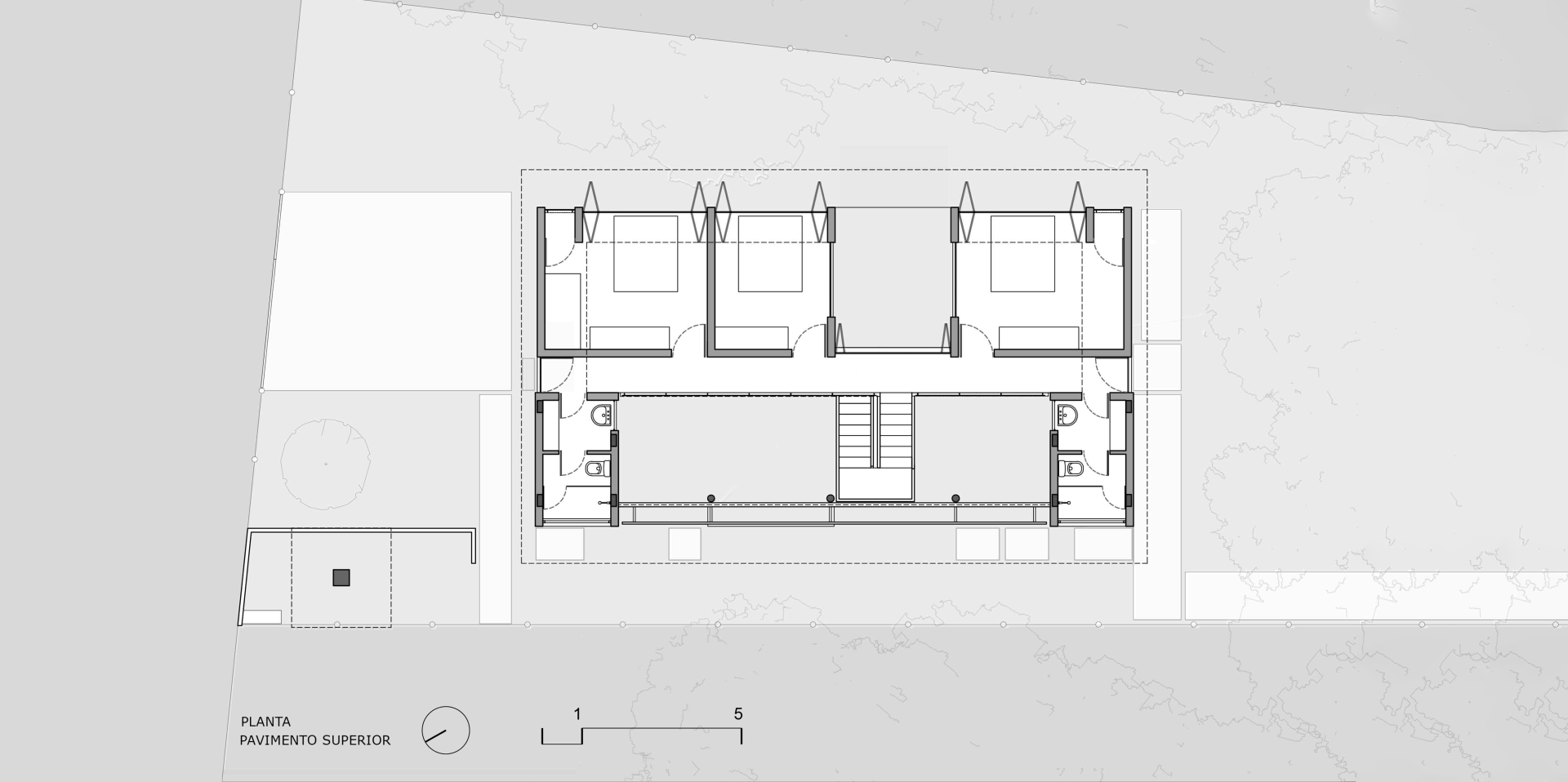
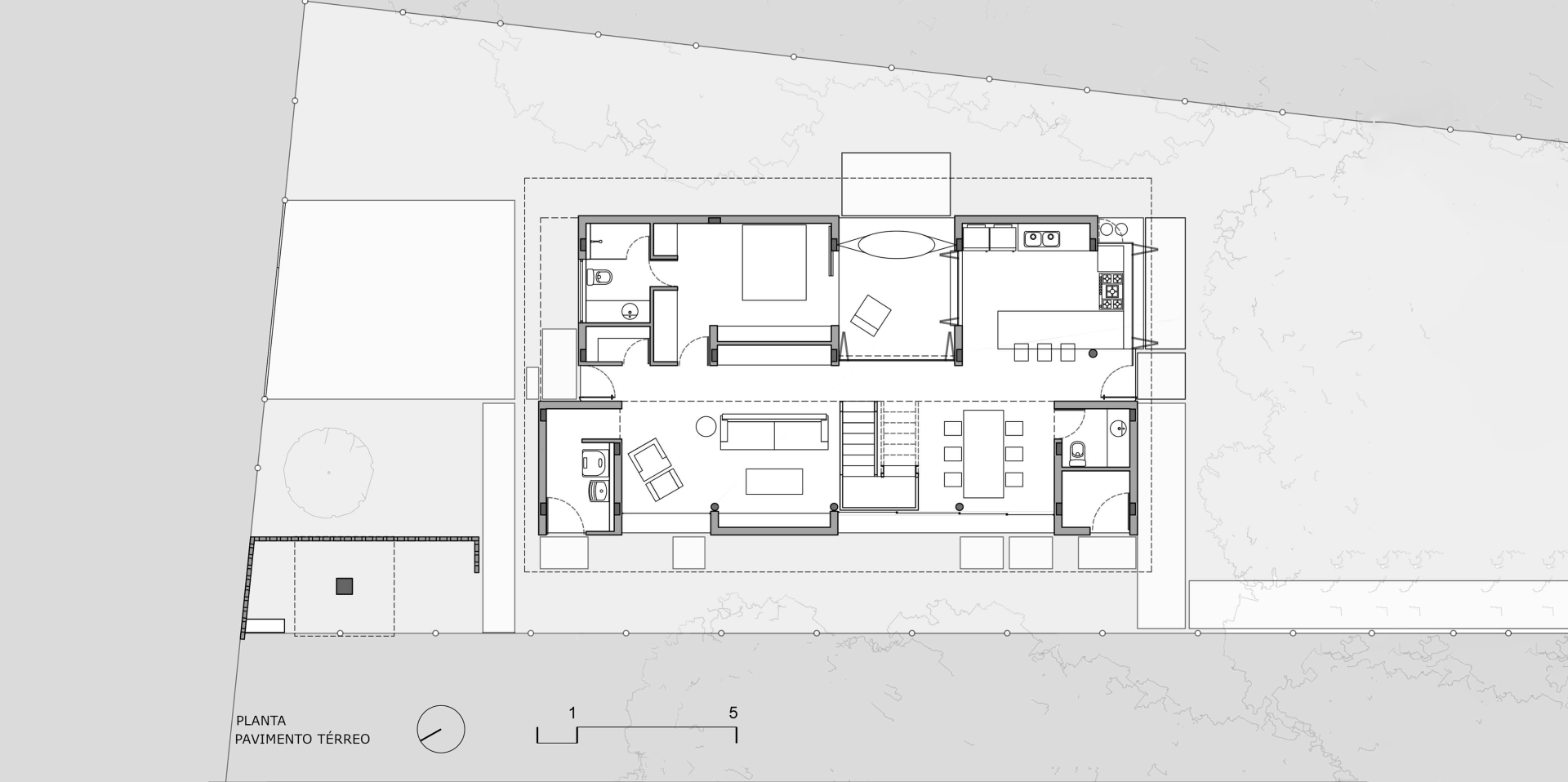
O programa do projeto foi pensado não apenas como um abrigo de veraneio para o casal com três filhos já adultos, mas também como possível casa principal do casal num futuro próximo, possibilitando o desfrute da aposentadoria em meio à paisagem natural. Para tanto, o pavimento térreo de 100m² garante a acomodação das funções essenciais da casa, além do quarto principal, sendo que jantar, estar e cozinha se integram em um pátio único, com pé-direito duplo, ampliando a entrada de luz, ventilação e visibilidade para a mata, como uma grande varanda aberta à brisa do mar. Os três dormitórios dos filhos e banheiros de uso comum ocupam o nível superior, decorrente da necessidade legal de implantação compacta da construção.
Tratando-se de uma casa na praia, algumas questões deveriam ser ponderadas no sistema estrutural, como a proximidade com a mata nativa, o clima quente e úmido, característico do litoral paulista, e o emprego de mão de obra local no desenvolvimento de grande parte da estrutura e infraestrutura. À vista dessas considerações, optou-se pela estrutura convencional de concreto e tijolos maciços na ala mais compartimentada da casa (quartos, cozinha e áreas molhadas), garantindo a expertise da mão de obra local e a carga térmica do material. Apoiada nesta ala maciça, desenvolve-se uma grande cobertura em estrutura de madeira, reforçada por três pilares também de mesmo material. A opção pela estrutura laminada de madeira, produzida pela ITA Construtora, preparada em fábrica e montada no canteiro, se deu por suas qualidades técnicas em vencer maiores vãos, resistência, precisão dos encaixes, rapidez na montagem e por corresponder ao imaginário coletivo da casa de praia.
A qualidade térmica dos ambientes se dá pelas qualidades do tijolo maciço, do uso de telhas termoacústicas e sobretudo, pela ventilação permanente garantida no desenho dos caixilhos e venezianas. A fachada noroeste se compõe em vidro, com proteções de tela atuando como brise. Já a fachada noroeste recebe venezianas em madeira, também desenvolvidas com o material e mão de obra local.
Como resultado, o projeto explora as possibilidades de diferentes sistemas construtivos e estruturais, expressando a própria natureza dos materiais, em concordância com seu entorno, além de promover a comunicação efetiva entre os ambientes da casa e a mata preexistente.
Projetos relacionados
-
465m² , 2021 Guaeca, São Sebastião - SP - Brasil
Residência LI - Guaecá
-
420m² , 2021 Jundiaí - SP - BrasilResidência FG - Jundiaí
-
355m² , 2021 São Francisco Xavier - SP - Brasil
Residência GS - São Francisco Xavier - Versão 01
-
450m² , 2022 Santo Antônio do Pinhal - SP - BrasilResidência HF - Sto Antônio do Pinhal