Residência LI - Guaecá

  • Ano: 2021
  • Superfície: 465m²
  • Localização: Praia de Guaeca – São Sebastião - SP
  • Equipe: Bruno Rossi, Marilia Giordano Rossi, Adriano Bueno, Natalia Bueno, João Pedro Tofano, Rafael Kenzo, Isabela Slywitch, Carolina Dantas, Karine Oliveira
  • Estrutura de madeira laminada: Ita Construtora
  • Projeto de estrutura de concreto: Gil Chinellato Engenharia Estrutural
  • Projeto de estrutura de metálica: Inner Engenharia
  • Projeto de Instalações: Ramoska & Castellani
  • Projeto de paisagismo: Alexandre Furcolin
  • Projeto luminotécnico: Lux Projetos
  • Fotos Interiores: Adriano Pacelli
  • Fotos Exteriores: André Scarpa

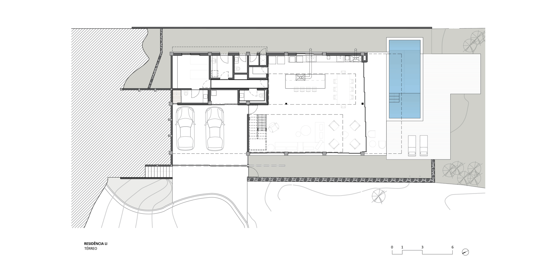
O projeto da residência LI, localizada num terreno na beira da praia de Guaecá, em São Sebastião, litoral norte de São Paulo, partiu da premissa da concepção de duas casas em uma. A ideia dos clientes era construir uma pequena casa para servir de aluguel e uma casa principal de veraneio que abrigasse toda a família.

Para isso, aproveitamos o desnível natural do terreno e a possibilidade de acesso por duas cotas diferentes para estabelecer as entradas dos dois usos. Como o terreno legal não é grande (apesar da generosa faixa da marinha – não edificante - que leva o jardim da casa até a areia da praia) optamos por imaginar um único corpo construído que não indicasse, na sua volumetria, esta divisão programática.

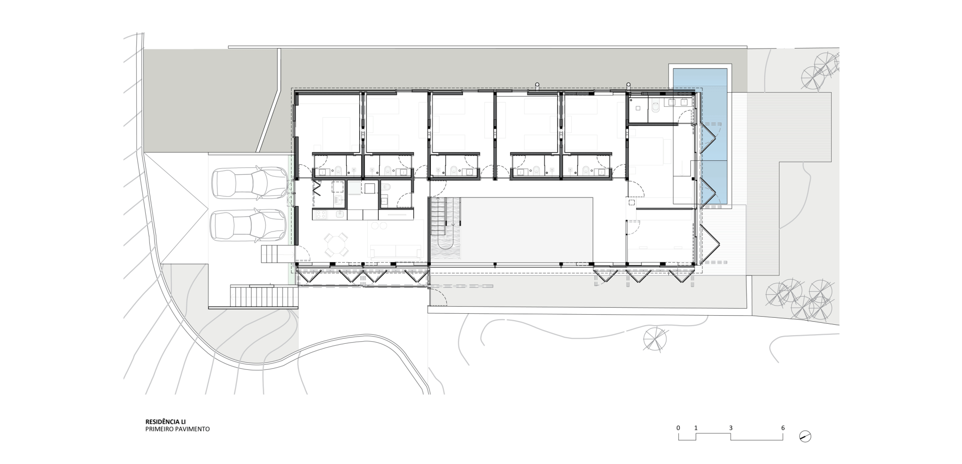
A cota superior da rua dá acesso à casa para aluguel, que conta com dois quartos, e aberturas e visuais para a densa mata atlântica do morro que circunda o terreno. Já na cota inferior, no final da rua, se dá o acesso de veículos e áreas comuns da casa principal que se estendem pelo jardim até a areia da praia.
O programa, portanto, se configura em três pavimentos. O térreo, na cota da praia, parte de um arrimo de um lado e se estende com pilares de concreto armado, promovendo áreas técnicas como serviços, lavabo e quarto de hóspedes e abriga as áreas de uso coletivo da casa, como cozinha e salas integradas a partir de um grande caixilho de vidro que configura por sua vez a varanda com a piscina, no limite do terreno com abertura para o jardim da praia.

O bloco do primeiro pavimento, todo em madeira laminada colada – MLC, pousa sobre o térreo e contempla os quartos e escritório da casa principal, além de toda a casa de aluguel. Este corpo construído é todo pré-fabricado com lajes secas e sistema de divisórias leves, e permite grandes aberturas para os visuais do mar e da grande mata que circunda a casa. Este elemento permite uma estrutura leve e esbelta, além de uma montagem muito rápida no canteiro.

No segundo pavimento, além de todo o sistema de máquinas e reservatórios, foi imaginada uma pequena construção em estrutura metálica, o mais leve possível, para abrigar uma sala com bar e piano com intuito de um outro tipo de uso coletivo, a partir do uso do terraço com um ofurô e todo o panorama do mar.

Com estes sistemas integrados, a casa ganha muito em luminosidade natural principalmente nas áreas comuns de uso coletivo e por abrigar, em geral, uma população variável a disposição dos móveis sugere flexibilidade. A ideia da sala principal e do terraço foi criar zonas de estar que pudessem se mesclar com os diferentes usos e horários, hora contemplando a vista, hora em programas mais internos. Essa mesma lógica segue no layout dos quartos, feitos em camas empilhadas e que podem receber números variáveis de usuários.

Apesar do extenso programa, encaramos o desafio de buscar uma volumetria com o menor impacto paisagístico possível. No local havia antes uma pequena casa, também de estrutura pré-fabricada de madeira, uma das primeiras a serem construídas na praia. Sua escala e cor norteou a construção paisagística do projeto – uma construção singela, emoldurada pela vegetação existente em contraste com a imensidão verde ao fundo.

Sobre a madeira

O primeiro pavimento possui estrutura em madeira laminada colada (MLC) de Eucalipto certificado. Essa madeira, com alta resistência mecânica, rápido crescimento e ampla disponibilidade no mercado nacional, contribui para a redução do impacto ambiental da obra. O sistema pré-fabricado garante precisão, otimiza o aproveitamento do material e proporciona baixa emissão de carbono. Além da estrutura, os sistemas de fechamentos, divisórias e lajes também são industrializados, reduzindo o desperdício de materiais, o impacto ambiental no local e proporcionando agilidade na execução.

O primeiro pavimento é construído com um sistema modular, com pilares a cada 3,8m. Essa modulação, porém, não foi replicada no pavimento térreo, onde a prioridade foi criar um amplo espaço livre de pilares. Para isso, foram utilizados contraventamentos em madeira e tirantes com cabo de aço, elementos que garantem a estabilidade da estrutura e permitem a criação de um amplo espaço livre no térreo e varanda. Essa solução confere leveza e amplitude ao ambiente, integrando visualmente o interior da casa com a varanda e o entorno. A utilização da madeira nos contraventamentos, além de garantir a eficiência estrutural, valoriza a estética natural do material e demonstra a versatilidade da madeira na construção.
A escada, pré-fabricada na mesma madeira utilizada na estrutura da casa se destaca no ambiente de pé-direito duplo. Uma vez que o objetivo era concebê-la o mais solta possível dos elementos estruturais da casa, optamos por estruturá-la usando barras metálicas – que atirantam nas vigas da cobertura e ancoram na fundação, garantindo a estabilidade da escada. Essa solução confere leveza e fluidez à escada, criando a impressão de que ela flutua no espaço.
Como a madeira deve ser protegida da chuva diretamente, e como a legislação não permite grandes avanços nos recuos, foi desenvolvido um sistema onde os caixilhos pudessem servir de proteção física para a água da chuva. Para isso, foram desenhados suportes ao longo das vigas periféricas de madeira para apoiar os trilhos dos caixilhos, liberando o espaço interno dos sistemas de travamento e contraventamento da estrutura de madeira. Além deste sistema de proteção da madeira em si, foi previsto em toda envoltória da casa uma espécie de segunda pele com brises ripados móveis de madeira que servem de filtro solar e controle visual.

Este site usa cookies para fornecer a funcionalidade necessária do site, melhorar sua experiência e analisar nosso tráfego. Ao usar nosso site, você concorda com nossa Política de Privacidade e uso de cookies.