- Ano: 2018
- Superfície: 25m²
- Localização: Santo Antônio de Posse – SP - Brasil
- Arquiteto Responsável: Bruno Rossi
- Equipe: Adriano Bueno, Letícia Sitta, Gustavo Bella
- Estrutura de concreto: Thiago Mazzutti Guerra
- Fotografia: André Scarpa
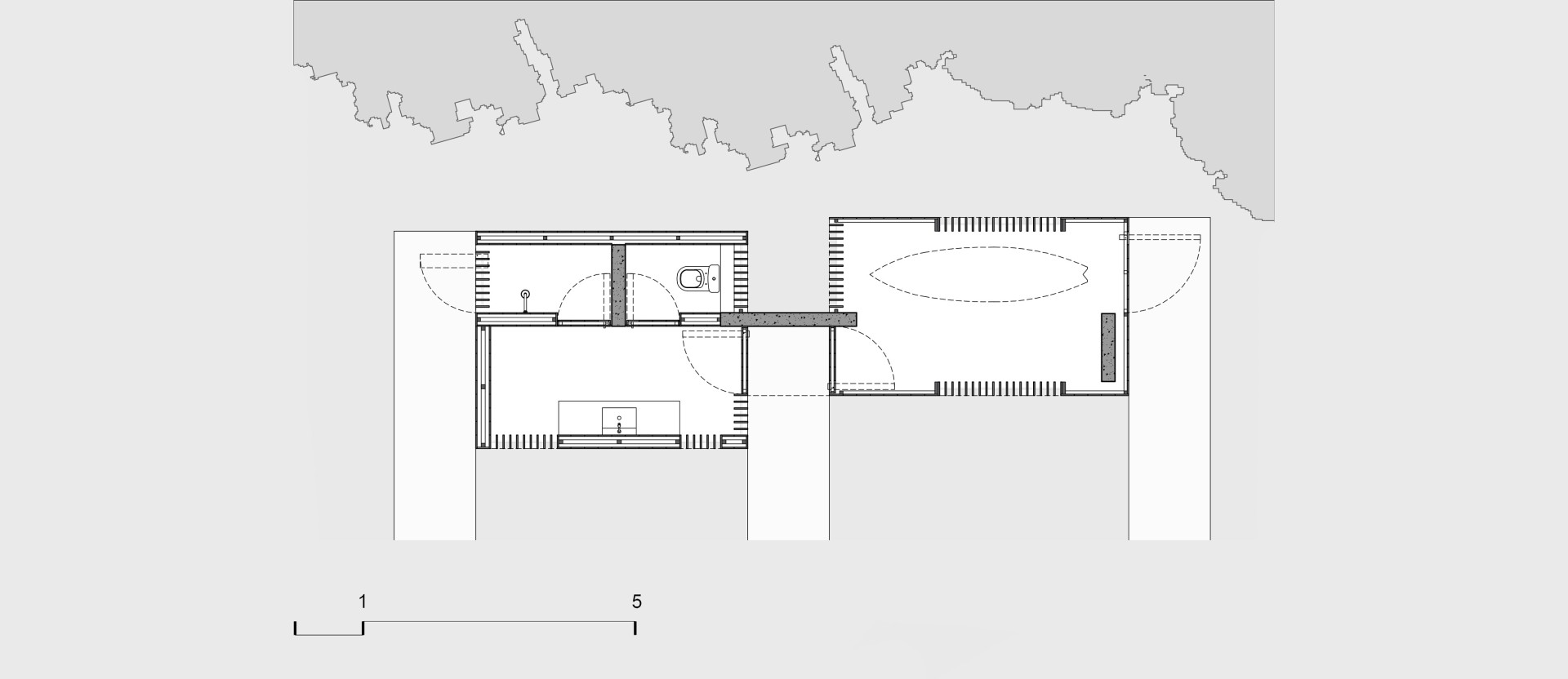
Localizado à beira da represa de uma fazenda particular no interior do estado de São Paulo, o pavilhão surge a partir da necessidade de infraestrutura de apoio aos seus usuários. Seu programa, simples e singelo, abriga um vestiário e um depósito para equipamentos de lazer náutico.
Para tal uso, propõe-se uma estrutura composta por três pilares de concreto armado, que suportam uma laje maciça de 25m², também em concreto. Desta forma, obtêm-se o perímetro delimitado pela cobertura, dando forma a um pavilhão livre de paredes, tendo seu fechamento conformado por tábuas de madeira garapeira, fixas em perfis metálicos, moduladas e espaçadas de 20 em 20 cm.
O fechamento leve faz a vedação do conjunto e ao mesmo tempo cria um elemento vazado para ventilação e iluminação natural, fundamentais para sua manutenção, além de permitir visibilidade, trazendo as cores da natureza do entorno para o interior da construção. Através das aberturas, entram também os raios solares, que incidem de maneira a criar um efeito notável no ambiente interno. A partir do entardecer, a iluminação transmite o efeito contrário, de dentro para fora, transformando o pequeno edifício num farol guia em meio à densa vegetação.
Como resultado, o programa simples é resolvido com um desenho também simples, porém eficiente e funcional, com sistemas construtivos que manifestam a própria natureza dos materiais, promovendo o diálogo entre a nova intervenção e a natureza ao redor.
Para tal uso, propõe-se uma estrutura composta por três pilares de concreto armado, que suportam uma laje maciça de 25m², também em concreto. Desta forma, obtêm-se o perímetro delimitado pela cobertura, dando forma a um pavilhão livre de paredes, tendo seu fechamento conformado por tábuas de madeira garapeira, fixas em perfis metálicos, moduladas e espaçadas de 20 em 20 cm.
O fechamento leve faz a vedação do conjunto e ao mesmo tempo cria um elemento vazado para ventilação e iluminação natural, fundamentais para sua manutenção, além de permitir visibilidade, trazendo as cores da natureza do entorno para o interior da construção. Através das aberturas, entram também os raios solares, que incidem de maneira a criar um efeito notável no ambiente interno. A partir do entardecer, a iluminação transmite o efeito contrário, de dentro para fora, transformando o pequeno edifício num farol guia em meio à densa vegetação.
Como resultado, o programa simples é resolvido com um desenho também simples, porém eficiente e funcional, com sistemas construtivos que manifestam a própria natureza dos materiais, promovendo o diálogo entre a nova intervenção e a natureza ao redor.
Projetos relacionados
-
80m² , 2018 Santo Antônio de Posse – SP - Brasil
Pavilhão Flutuante - Santo Antônio de Posse
-
240m² , 2016 Santo Antônio de Posse – SP - BrasilEscritório na Fazenda
-
80m² , 2017 Santo Antônio de Posse – SP - BrasilRefeitório e Vestiário na Represa
-
550m² , 2018 Lins – SP - BrasilTatersal Amador Aguiar