- Ano: 2021
- Superfície: 400m²
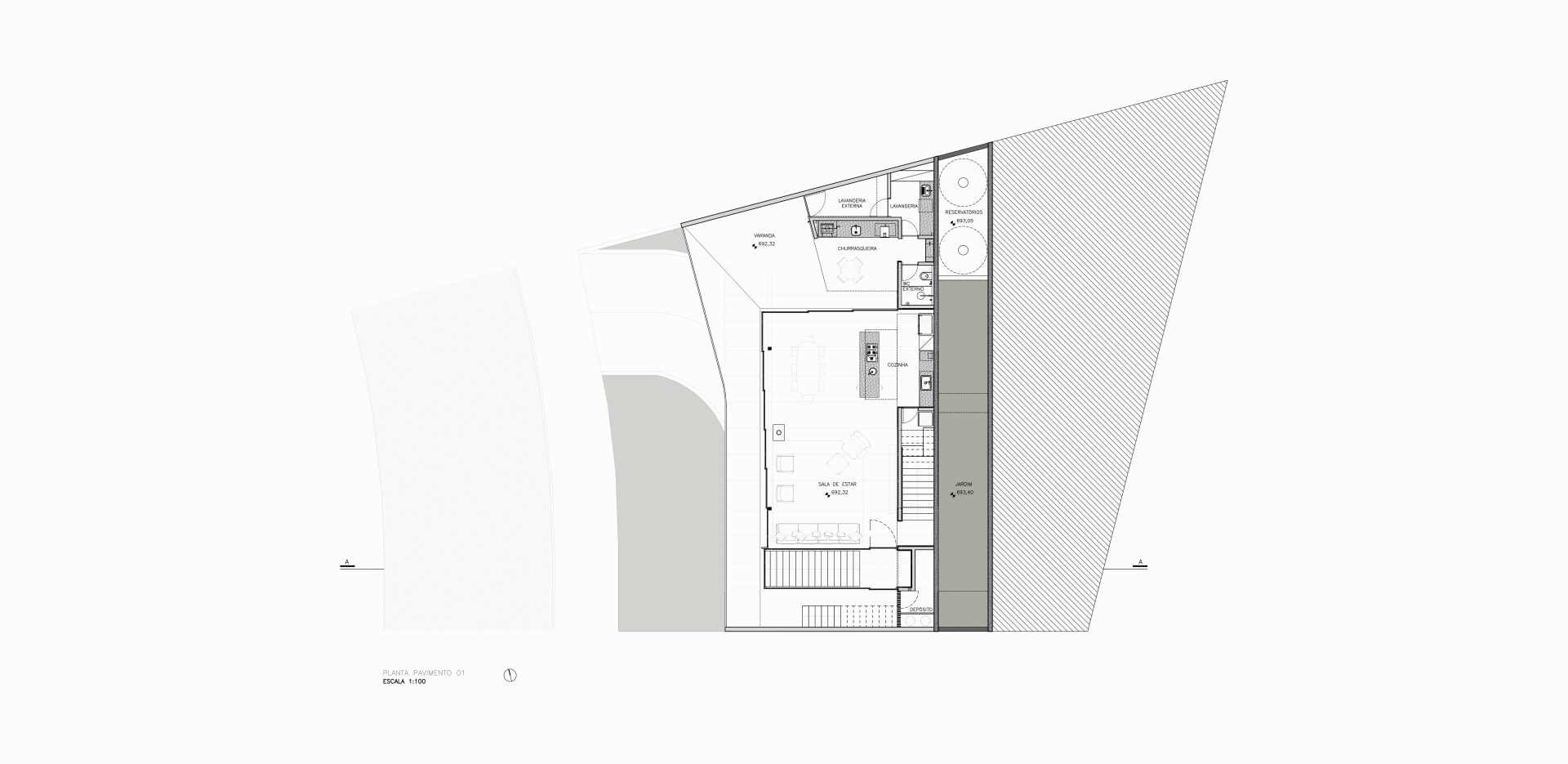
- Localização: Campinas - SP
- Projeto de estrutura de concreto: Engebiz
- Estrutura de madeira laminada: Timbau
- Projeto de Instalações: Solar Engenharia e Tecnologia
- Render Externo: Solo CG
- Render Interno: GS Studio
Projetos relacionados
-
465m² , 2021 Guaeca, São Sebastião - SP - Brasil
Residência LI - Guaecá
-
190m² , 2017 Praia do Prumirim, Ubatuba - SP - BrasilResidência SA - Prumirim
-
420m² , 2021 Jundiaí - SP - BrasilResidência FG - Jundiaí
-
355m² , 2021 São Francisco Xavier - SP - Brasil
Residência GS - São Francisco Xavier - Versão 01